Studio Bonneville dernier étage avec véranda, vue montagne et ascenseur

  • 110 000€
Bonneville
BIENS EN VENTE A rénover Vue montagnes

Studio Bonneville dernier étage avec véranda, vue montagne et ascenseur

Bonneville
  • 110 000€

Aperçu

  • Appartement, Biens en vente
  • Type de biens
  • 38,93
  • 38,93
  • 2
  • Pieces
  • 1
  • Chambre
  • 1
  • Salle de bains
  • 1969
  • Année de construction

Description

Un studio rare par sa surface… et par sa vraie chambre indépendante

Vous cherchez un studio Bonneville dernier étage qui sort du lot ? Alors, vous allez aimer ce format rare. Avec 38,93 m², ce grand studio offre un volume suffisant pour avoir une chambre indépendante. Ainsi, vous profitez d’une séparation jour/nuit très confortable. De plus, cette configuration plaît autant aux primo-accédants qu’aux locataires exigeants.

Ensuite, une véranda accessible depuis le séjour, exposée ouest

Dès que vous entrez dans le séjour (environ 18 m²), vous accédez directement à la terrasse sous véranda. Par conséquent, vous gagnez une pièce “bonus” lumineuse, idéale pour un coin lecture, un bureau ou une salle à manger d’appoint. Et surtout, l’exposition plein ouest prolonge la lumière en fin de journée. Enfin, la vue dégagée sur les montagnes apporte un charme immédiat, sans vis-à-vis oppressant.

Par ailleurs, le dernier étage avec ascenseur change le quotidien

Ici, vous vivez au 5e et dernier étage, tout en gardant le confort grâce à l’ascenseur. Donc, vous montez facilement vos courses, vos valises, ou votre vélo. De même, vous profitez d’une sensation de tranquillité appréciable au sommet de l’immeuble. Côté pratique, le stationnement reste simple grâce au parking de copropriété.

Cependant, la rénovation globale devient un levier de valeur

L’appartement demande une rénovation globale : sols, murs, plafonds et certaines fenêtres. Pourtant, c’est précisément ce qui crée l’opportunité. En effet, vous choisissez vos matériaux, vous modernisez à votre goût et vous améliorez la performance du logement. Par ailleurs, la copropriété n’a rien voté concernant les gros travaux pour le moment. Ainsi, les copropriétaires avancent au fur et à mesure, ce qui évite un scénario d’appel de fonds déjà imposé.

En plus, une cave sécurisée en RDC et une localisation qui facilite tout

Vous disposez d’une cave de 3 m² en rez-de-chaussée, avec accès sécurisé. Donc, vous stockez facilement pneus, skis, cartons ou équipement sportif. Et surtout, l’emplacement simplifie la vie : vous rejoignez rapidement le centre-ville, la gare et le lycée professionnel. Par conséquent, vous réduisez les trajets, et vous gagnez en confort au quotidien.

Enfin, primo-accédant ou investisseur : un projet clair

Pour un primo-accédant, ce studio Bonneville dernier étage combine espace, lumière et perspective de valorisation après travaux. Pour un investisseur, les loyers visés donnent une lecture directe : environ 15 €/m² en location nue et jusqu’à 22 €/m² en meublé. De plus, vous évoquez une évolution de +18% sur 5 ans sur le loyer moyen, ce qui renforce la logique patrimoniale.

Contact

Vous souhaitez visiter ce studio à Bonneville en dernier étage et chiffrer sereinement le potentiel travaux / location ? Alors, contactez-moi pour organiser une visite et envisager la meilleure stratégie.

Les informations sur les risques auxquels ce bien est exposé sont disponibles sur le site Géorisques. Benoit Sellier Dagnac, Courtier immobilier chez eXp Realty France, vous propose ce bien en exclusivité.

Détails

  • Prix: 110 000€
  • Surface: 38,93 38,93
  • Chambre: 1
  • Pieces: 2
  • Salle de bains: 1
  • Année de construction: 1969
  • Type de biens: Appartement, Biens en vente
  • Statut: BIENS EN VENTE

Autres caractéristiques

  • Ascenseur: Oui
  • Entrée: 1,55m2
  • Placards d'entrée: 0,68m2
  • Salle d'eau - WC : 5,11m2
  • Chambre: 8,3m2
  • Placards de chambre: 1,50m2
  • Cuisine: 3,60m2
  • Séjour: 18,45m2
  • Véranda: 17,93m2
  • Cave: 3m2

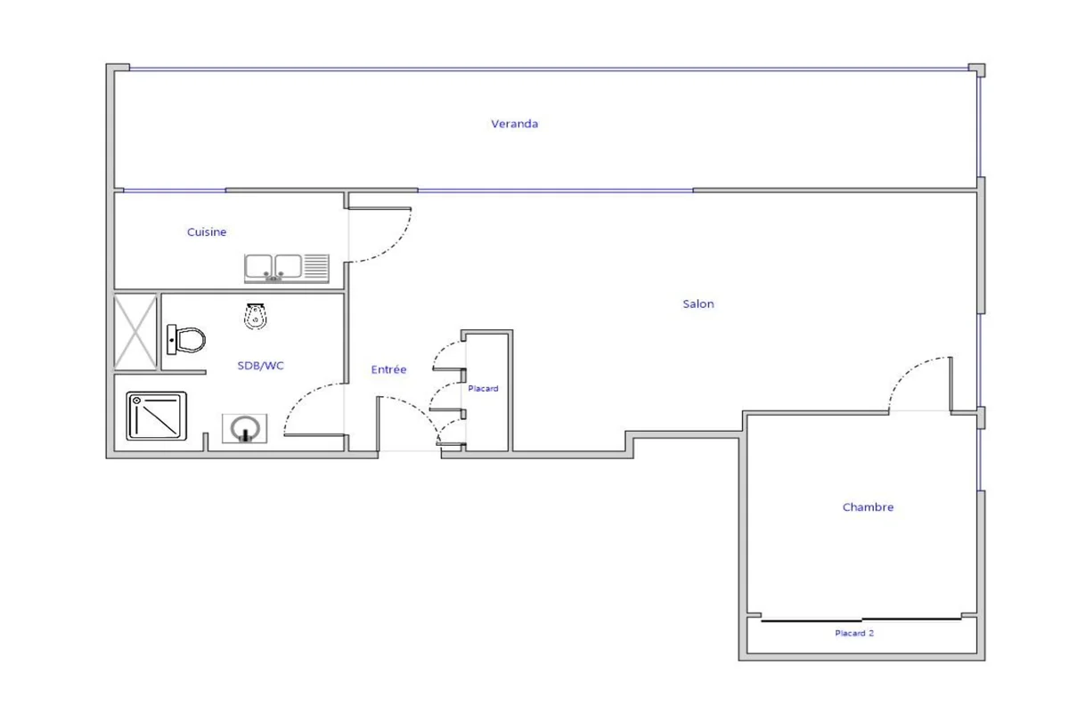
Plan des étages

image

Description:
Plan d’aménagement du studio à Bonneville : entrée avec placard, salle d’eau avec WC, coin cuisine, grand salon ouvrant sur la véranda, et chambre indépendante avec rangements.

Classe énergétique

  • Classe énergétique: G
  • Indice mondial de performance énergétique: 591
  • A+
  • A
  • B
  • C
  • D
  • E
  • F
  • 591 | Classe énergétique G
    G
  • H

Biens similaires

Compare listings

Comparer
Benoit Sellier Dagnac
  • Benoit Sellier Dagnac